PROJECTS
THE OFFICE
News / Awards
Menu
Steven Fett Architecture
architectural design and planning firm
PROJECTS
THE OFFICE
News / Awards
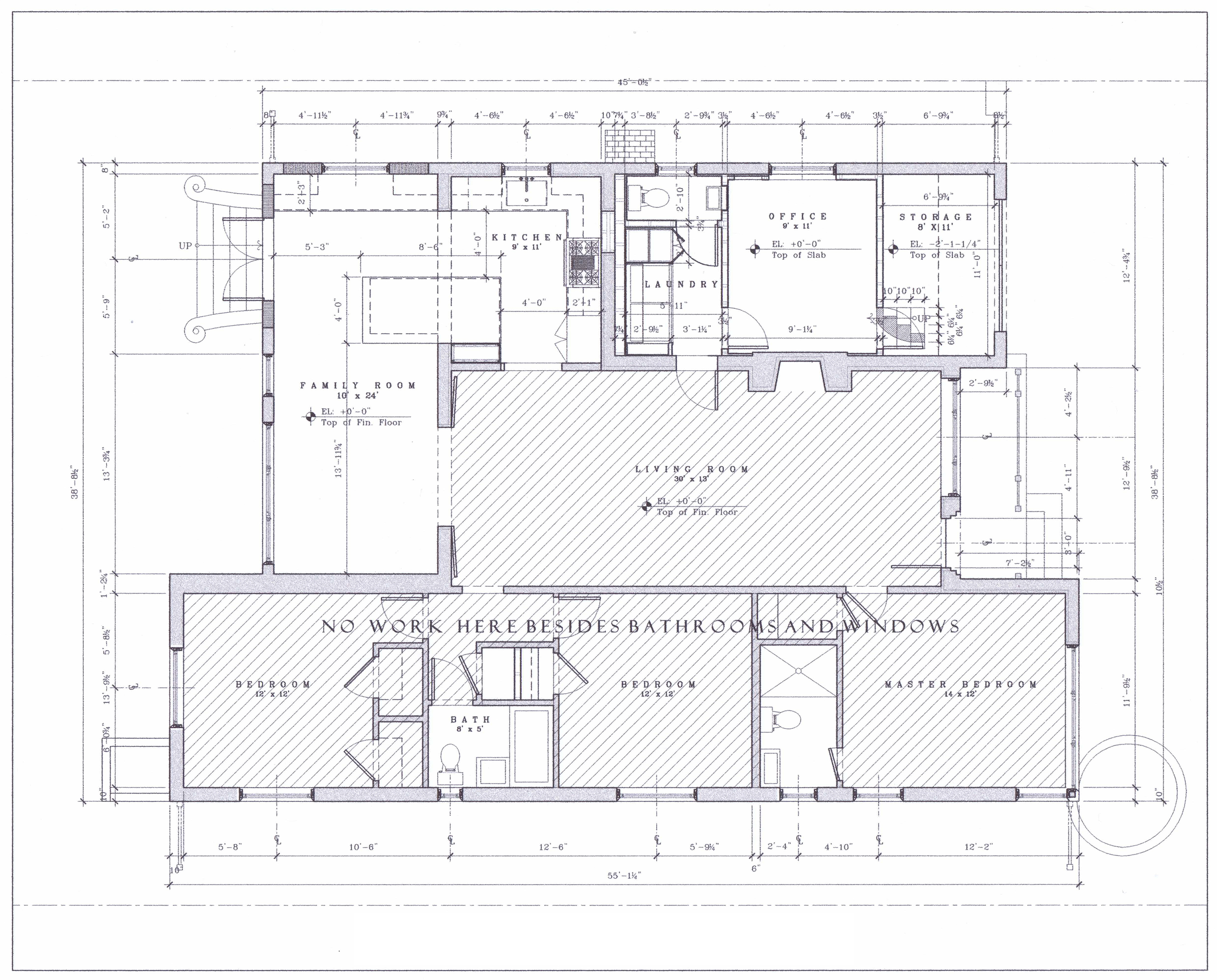
Ivory Residence